

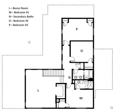
With approximately 3200 sq. ft. on two levels, PASSIVHAUS offers a great floor plan with abundant storage and easy movement – ideal for a young family or a retiring couple. The home will easily accommodate an active family lifestyle or serve as a quiet, cozy retreat on a cold winter weekend.